SteelLib
Первая в России энциклопедия по стальному строительству
Главная Печать
Сообщить об ошибке

Концепции АРСС (паркинги)

Линейная двухсторонняя многоуровневая парковка с платформами для автомобилей

Линейный многоуровневый паркинг, разработанный конструкторским отделом «Северсталь Стальные Решения», позволяет разместить максимальное количество автотранспорта на небольшой территории. Количество машино-мест на одном этаже – 66. Данное типовое решение для паркинга может быть реализовано различной этажности – от двух до пяти этажей.

Рис. 7.1 Линейная двухсторонняя многоуровневая парковка с платформами для автомобилей. Компания «Северсталь Стальные Решения»

Таблица 7.1 Технико-экономические показатели

Наименование Единица измерения 131 машино-мест 228 машино-мест 300 машино-мест
Общая площадь здания м2 3 760,68 5 640,9 7 521,36 9 401,7
Площадь застройки м2 2 117,91 2 117,91 2 117,91 2 117,91
Строительный объем м2 11 860,24 17 760,36 23 720.6 30 383,34
Площадь 1-го этажа м2 1 880,34 1 880,34 1 880,34 1 880,34
Площадь типового этажа м2 1 880,34 1 880,34 1 880,34 1 880,34
Металлоемкость кг/м2 46 37 37 46
Этажность эт. 2 3 4 5

Типовой паркинг на 300 машино-мест

Типовое решение разработано для открытого и закрытого типов гаража-стоянки как с мойкой, так и без нее. Фотографии плана первого этажа и типового этажа (относятся к закрытому и открытому паркингу).

Таблица 7.2 Технико-экономические показатели

Наименование Единицы измерения Закрытый паркинг на 300 машино-мест Открытый паркинг
без мойки с мойкой
Общая площадь здания м2 9 777,82 10 194,41 9 777,82
Площадь застройки м2 1 862,15 1 872,75 1 862,15
Строительный объем м2 29 282,82 30 990,38 29 282,82
Площадь 1-го этажа м2 1 647 1 691,70 1 647
Площадь типового этажа м2 1 610,2 1 610,20 1 610,20
Площадь мойки м2 789,40
Металлоемкость кг/м2 53 51 760 51,30
Этажность эт. 5 5,50 5

Рис. 7.2 План 1-го этажа с мойкой
Рис. 7.3 План типового этажа
Рис. 7.4 Макет многоярусного паркинга компании «Северсталь Стальные Решения»

Линейный двухрядный паркинг с радиальной рампой

Количество мест на одном этаже – 66 машино-мест.

Данный паркинг может быть реализован в 2-, 3-, 4-, 5-этажном исполнении.

Таблица 7.3 Технико-экономические показатели

Наименование Единицы измерения 123 машино-мест 189 машино-мест 255 машино-мест 300 машино-мест
Общая площадь здания м2 23 546,5 35 319,72 47 092,96 58 866,2
Площадь застройки м2 12 790,6 12 790,6 12 790,6 12 790,6
Строительный объем м2 65 930,14 98 895,2 131 860,3 164 825,36
Площадь 1-го этажа м2 11 773,24 11 773,24 11 773,24 11 773,24
Площадь типового этажа м2 11 773,24 11 773,24 11 773,24 11 773,24
Металлоемкость кг/м2 62 37 37 46
Этажность эт. 2 3 4 5

Рис. 7.5 Линейный двухрядный паркинг.
Компания «Северсталь Стальные Решения»

Паркинг открытого типа на 495 машино-мест

Рис. 7.6 Паркинг открытого типа.
Компания «ЕВРОГРУП»

Краткое описание

Паркинг открытого типа на 495 машино-мест

Степень огнестойкости – III.

Проектом предусматривается строительство отдельно стоящей 5-этажной надземной гараж-стоянки с эксплуатируемой кровлей на 495 машино-мест.

Габаритные размеры здания – 114,90х21,9 м. Шаг колонн 5,2х17,3 м, высота этажа – 3,1 м. Подвальный этаж не предусмотрен.

Движение автомобилей по вертикали организовано по встроенным неизолированным рампам, уклон рампы – 14%.

Фасады: металлическое ограждение.

Перекрытие выполнено по технологии компании ThyssenKrupp.

Лестницы – монолитные, железобетонные.

Вместимость этажа: 84 м/м

Таблица 7.4 Технико-экономические показатели

Технико-экономические показатели Единица измерения Количество
Этажность эт. 5
Площадь застройки м2 2 400
Общая площадь м2 13 800
Количество машино-мест м/м 495
Шаг колонн м 5,2х17,3

Стоимость машино-места – 400 тыс. руб.

Рис. 7.7 Схема паркинга открытого типа.
Компания «ЕВРОГРУП»
Рис. 7.8 Схема паркинга открытого типа.
Компания «ЕВРОГРУП»

Паркинг открытого типа на 297 машино-мест

Рис. 7.9 Паркинг открытого типа.
Компания «ЕВРОГРУП»

Краткое описание

Паркинг открытого типа на 297 машино-мест

Степень огнестойкости – IV.

Проектом предусматривается строительство отдельно стоящей 5-этажной надземной гараж-стоянки с эксплуатируемой кровлей на 297 машино-мест.

Габаритные размеры здания – 100,50х22,05 м. Шаг колонн – 5,2х17,3 м, высота этажа – 3,1 м. Подвальный этаж не предусмотрен.

Движение автомобилей по вертикали организовано по встроенным неизолированным рампам, уклон рампы – 14%.

Фасады комбинированные: металлическое ограждение и парапет из профилированного листа.

Перекрытие выполнено по технологии компании ThyssenKrupp.

Лестницы – монолитные, железобетонные.

Вместимость этажа: 67 м/м

Таблица 7.4 Технико-экономические показатели

Технико-экономические показатели Единица измерения Количество
Этажность эт. 5
Площадь застройки м2 1 870
Общая площадь м2 11 200
Количество машино-мест м/м 297
Шаг колонн м 5,2х17,3

Стоимость машино-места – 430 тыс. руб.

Рис. 7.10 Схема паркинга открытого типа.
Компания «ЕВРОГРУП»
Рис. 7.11 Схема паркинга открытого типа.
Компания «ЕВРОГРУП»

Наземный гараж-стоянка из двух корпусов

Рис. 7.12 Наземный гараж-стоянка. Компания «К-Проект»

Краткое описание

Наземный гараж-стоянка состоит из двух корпусов.

Степень огнестойкости – III.

Фасадное решение корпусов гаражного комплекса основано на сочетании двух различных материалов, одним из которых являются фиброцементные панели, которыми облицованы лестницы, лифтовые шахты и торцевые фасады корпусов, другим – окрашенные в белый цвет металлические трубы прямоугольного сечения.

Цоколь фасада корпусов облицован фиброцементными панелями темно- серого цвета.

Корпус 1.

Корпус 1 – открытый, неотапливаемый гараж-стоянка на 522 легковых автомобиля представляет собой 6-этажное здание со смещенными полуэтажами шириной 17,7 м и переменной длиной 67,5-73,9 м, с одной внутренней неизолированной двухпутной рампой с уклоном 13% и двумя однопутными внутренними неизолированными рампами с уклоном 13–15%, на которых предусмотрены пешеходные трапы, поднятые над уровнем проезжей части.

Высота 1–5 этажей (от пола до пола полуэтажей) – 3,0-3,2 м;

Высота 6-го этажа – переменная из-за уклона кровли (до ~5 м) и последнего полуэтажа.

Габаритные размеры здания – (68,0-74,1)х36,2 м.

Сетка колонн – (5,4-6,6)х(2,7-5,4) м.

Корпус 2.

Гараж-стоянка включает в себя комплекс различных по функциональному назначению помещений с поэтажно-блочным зонированием на 6 этажах, с неэксплуатируемой кровлей.

Габаритные размеры здания – (78,9–104)х36,2 м.

Сетка колонн – (5,4–6,6)х(2,9-5,4) м.

На 1-м этаже расположены помещения мойки легковых автомобилей на 6 постов и участка шиномонтажных работ, подсобные помещения, помещения обслуживающего персонала, административные и клиентские помещения, технические помещения, магазин запчастей, помещения 4 боксов – отапливаемые.

1–6 этажи – гараж-стоянка открытого типа со смещенными полуэтажами шириной 17,7 м и переменной длиной 78,4-104 м, с двумя парами однопутных неизолированных рамп с уклоном 13-16%.

Кровля скатная из окрашенного стального профнастила Н75.

Наружное ограждение открытого гаража-стоянки выполнено с использованием металлических труб прямоугольного сечения и сетчатого ограждения.

Лестницы – монолитные, железобетонные.

Таблица 7.6 Технико-экономические показатели

Наименование показателя Единица измерения Номер корпуса Всего
1 2
Верхняя отметка объекта эт. 21,150 21,950 -
Этажность этажи 6 6 -
Площадь участка га 1,3
Площадь застройки м2 2 630 3 392 6 022
Общая площадь м2 15 015,6 18 958,4 33 974
Сетка колонн м (5,4-6,6) х (2,7-5,4) (5,4-6,6) х (2,9-5,4) -
Количество машино-мест в открытой части гаража-стоянки м/м 552 652 1 174
Количество гаражных боксов бокс - 4 4

Стоимость машино-места – 400 тыс.руб.

Рис. 7.13 Корпус 1
Рис. 7.14 План типового этажа и разрез. Корпус 2
Рис. 7.15 Корпус 2

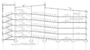
Гараж-стоянка открытого типа на 300 машино-мест с автомойкой

Рис. 7.16 Планы и разрез гаража-стоянки открытого типа на 300 машино-мест с мойкой легковых автомобилей в г. Ростове-на-Дону.
Компания «К-Проект»

Краткое описание

Гараж-стоянка открытого типа на 300 машино-мест с мойкой легковых автомобилей в г. Ростове-на-Дону

Степень огнестойкости – IV.

Проектом предусматривается строительство отдельно стоящего 5-этажного надземного гаража-стоянки на 300 машино-мест с мойкой легковых автомобилей.

Габаритные размеры здания – 60,8х34,8 м, шаг колонн – 2,8-5,2х5,3-6,8 м, высота этажа – 2,8 м с полуэтажами. Подвальный этаж не предусмотрен.

Движение автомобилей по вертикали организовано по встроенной неизолированной двухпутной рампе с транзитным движением автомобилей через полуэтажи автостоянки. Уклон рампы – 13%. На рампе предусмотрены тротуары шириной 0,9 м для прохода на полуэтаж.

В проектируемом гараже-стоянке предусмотрена мойка на 1-м этаже.

Фасады: стальные элементы с окраской.

Наружные стены отапливаемой части здания выполнены из сэндвич- панелей.

Общая устойчивость зданий обеспечивается жесткими узлами рам в поперечном направлении, вертикальными связями в продольном направлении, жесткими дисками перекрытий и пандусов и горизонтальными связями в уровне прогонов покрытия.

Лестницы – монолитные, железобетонные.

Таблица 7.7 Технико-экономические показатели

Технико-экономические показатели Единица измерения Количество
Этажность эт. 5
Площадь застройки м2 2 042
Общая площадь м2 9 313
Количество машино-мест м/м 300
Шаг колонн м 2,8-5,2х5,3-6,8

Стоимость машино-места – 320 тыс. руб.

Гараж-стоянка открытого типа на 28 машино-мест

Рис. 7.17 Гараж-стоянка открытого типа на 28 машино-мест в г. Саратове.
Компания «К-Проект»

Краткое описание

Гараж-стоянка открытого типа на 28 машино-мест в г. Саратове

Степень огнестойкости – IV.

Одноэтажная надземная автостоянка открытого типа Г-образной формы в плане с габаритными размерами между крайними осями 20,7х41,6 м. Количество этажей –1, высота этажа – 2,8 м

Таблица 7.8 Технико-экономические показатели

Технико-экономические показатели Единица измерения Количество
Этажность эт. 1
Общая площадь м2 800
Количество машино-мест м/м 300

Гараж-стоянка открытого типа на 299 машино-мест

Рис. 7.18 Планы и разрез гаража-стоянки открытого типа на 299 машино-мест с мойкой легковых автомобилей в г. Тюмени.
Компания «К-Проект»

Краткое описание

Гараж-стоянка открытого типа на 299 машино-мест в г. Тюмени

Степень огнестойкости – III.

Проектом предусмотрено строительство отдельно стоящего 5-этажного надземного гаража-стоянки на 299 машино-мест.

Габаритные размеры здания – 52,4х35,2 м. Шаг колонн – 2,8-5,3х5,7-6,8 м, высота этажа – 2,8 м с полуэтажами. Подвальный этаж не предусмотрен.

Движение автомобилей по вертикали организовано по встроенной неизолированной двухпутной рампе с транзитным движением автомобилей через полуэтажи автостоянки. Уклон рампы – 12,5%. На рампе предусмотрены тротуары шириной 0,9 м для прохода на полуэтаж.

Фасады: стальные элементы окраской.

Общая устойчивость зданий обеспечивается жесткими узлами рам в поперечном направлении, вертикальными связями в продольном направлении, жесткими дисками перекрытий и пандусов и горизонтальными связями в уровне прогонов покрытия.

Лестницы – монолитные, железобетонные.

Таблица 7.9 Технико-экономические показатели

Технико-экономические показатели Единица измерения Количество
Этажность эт. 5
Площадь застройки м2 1 890
Общая площадь м2 8 765
Количество машино-мест м/м 299
Шаг колонн м 2,8-5,2х5,3-6,8

Стоимость машино-места – 300 тыс. руб.

Напишите нам
Подписаться на рассылку
Сообщить об ошибке