SteelLib
Первая в России энциклопедия по стальному строительству
Главная Печать
Сообщить об ошибке

Примеры несущих каркасов

1. Стальной каркас здания с монолитными перекрытиями.

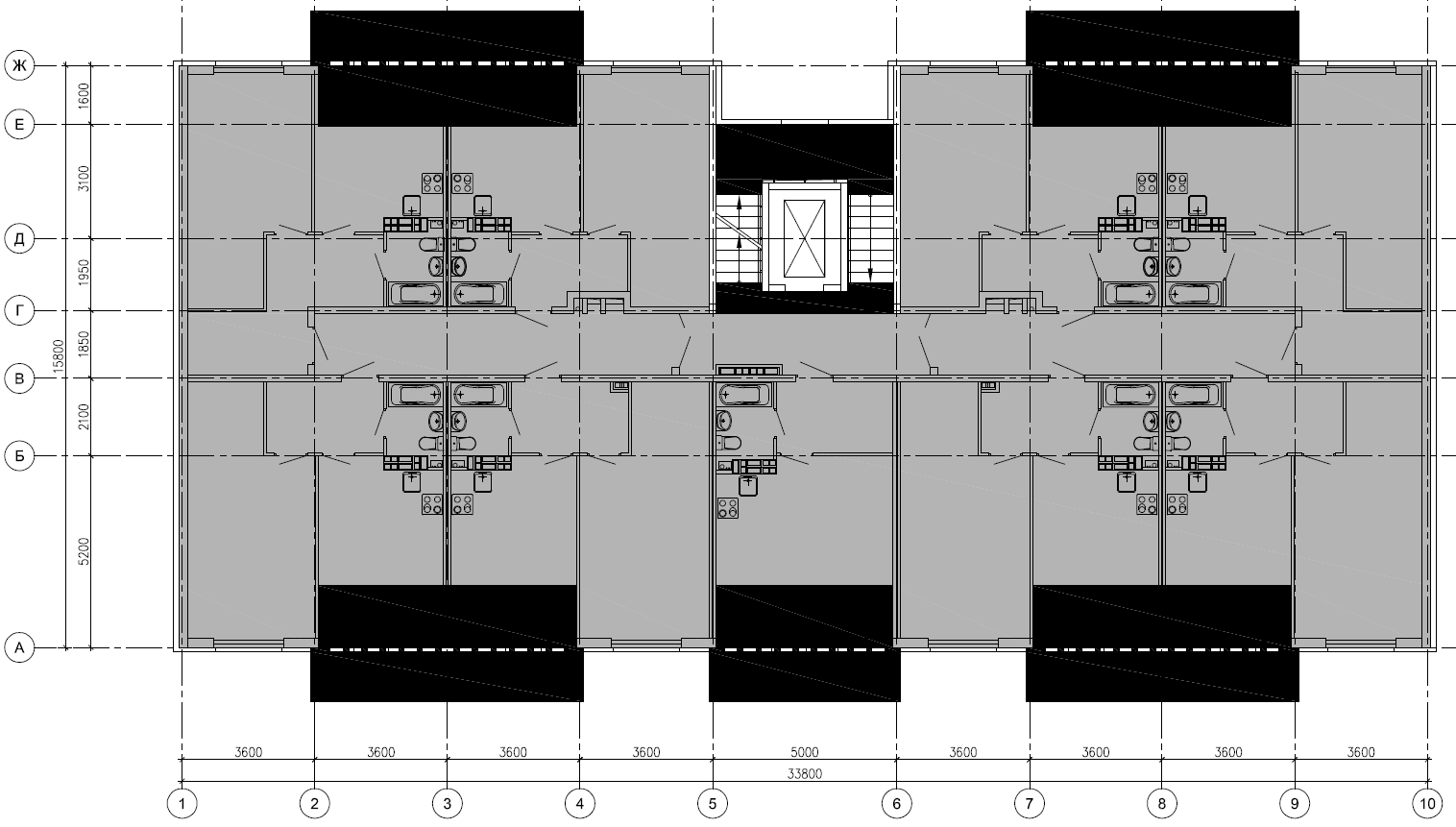
Рисунок 15 Пример архитектурно-планировочного решения типового этажа многоэтажного жилого здания

Основные показатели планировки типового этажа

Общая площадь этажа

550 кв.м

Площадь квартир

440 кв.м

Площадь МОП

65 кв.м

Внутренние и наружные стены.

Стены “квартира-коридор” – керамзитобетонные блоки 190мм по ГОСТ 6133-99;

Межквартирные стены – пазогребневые плиты 2х80мм с промежуточным слоем звукоизоляции 40мм;

Межкомнатные перегородки - пазогребневые плиты 80мм;

Наружные стены – ячеистые блоки 250мм по ГОСТ 21520-89, минераловатный утеплитель 150мм, фасадная штукатурка.

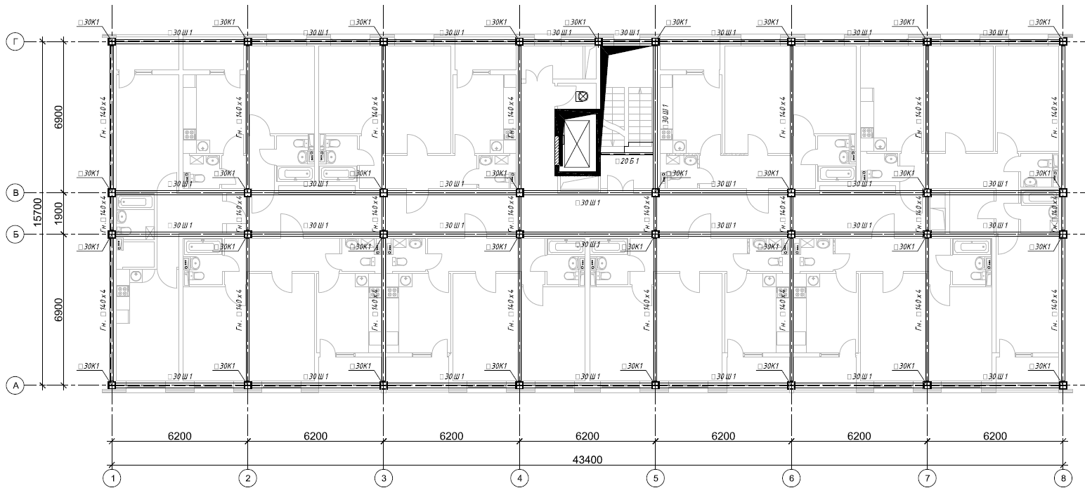
Рисунок 16 План расположения вертикальных конструкций
Рисунок 17 План расположения элементов каркаса перекрытия типового этажа
Рисунок 18 Схема расположения участков плиты перекрытия
- плоская плита толщиной 180-200 мм
- плита по несъёмной опалубке (тип 1), либо плоская по нижнему поясу балок толщиной 125мм (тип 2)
Рисунок 19 Варианты конструирования плитной части перекрытий

Варианты отделки каркаса

Рисунок 20 Узлы отделки каркаса перекрытий

Показатели расхода материалов конструкций каркаса типового этажа для двух типов перекрытий.

Конструкции

Тип 1

Тип 2

Стальной каркас

35-40 кг/кв.м

45-50 кг/кв.м

Железобетонные плиты

87 куб.м

76 куб.м

Ц.-п. стяжка

23 куб.м

23 куб.м

Керамзитовый гравий

-

80 куб.м

Натяжной потолок

500 кв.м

-

Огнезащитный материал “Knauf FB”

250 кв.м

40 кв.м

В таблице приведены показатели, необходимые для сравнения стального каркаса с альтернативными технологиями, например, с монолитным каркасом. Подобное сравнение справедливо, если затраты на устройство плоской монолитной железобетонной плиты противопоставляются затратам на устройство конструкций перекрытия со стальным каркасом с учётом огнезащиты, натяжного потолка (если перекрытие выполняется по типу 1), керамзита и стяжки (если перекрытие выполняется по типу 2).

2. Стальной каркас здания со сборными перекрытиями.

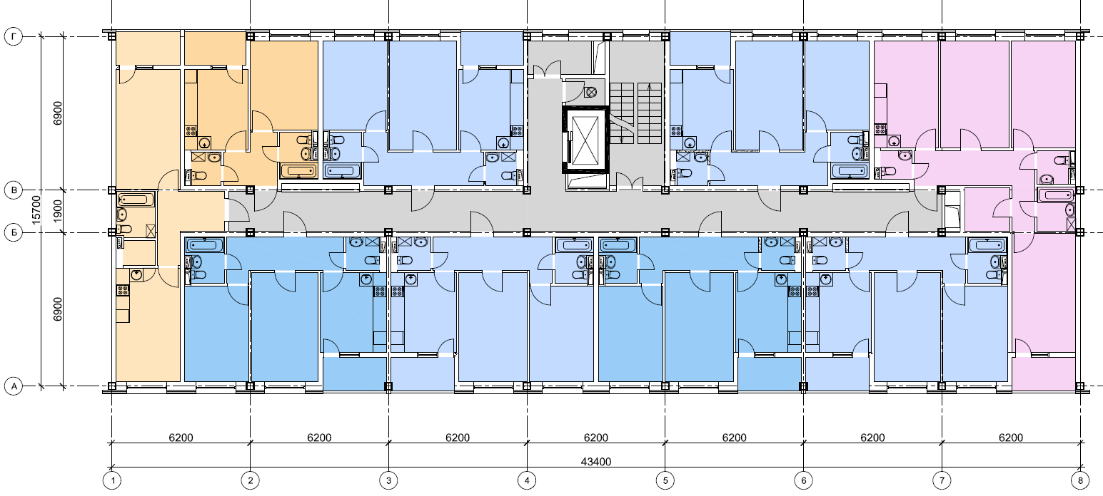
Рисунок 21 Пример архитектурно-планировочного решения типового этажа многоэтажного жилого здания

Основные показатели планировки типового этажа

Общая площадь этажа

640 кв.м

Площадь квартир

450 кв.м

Площадь МОП

90 кв.м

Внутренние и наружные стены.

Стены “квартира-коридор” – керамзитобетонные блоки 190мм по ГОСТ 6133-99;

Межквартирные стены – пазогребневые плиты 2х80мм с промежуточным слоем звукоизоляции 40мм;

Межкомнатные перегородки - пазогребневые плиты 80мм;

Наружные стены – ячеистые блоки 250мм по ГОСТ 21520-89, минераловатный утеплитель 150мм, фасадная штукатурка.

Рисунок 22 Схема расположения элементов каркаса перекрытия
{{img:/images/zhilye-zdaniya/zhilye-zdaniya-2-3-3-12.png|Рисунок 23 Схема расположения сборных железобетонных плит перекрытия
- монолитные участки перекрытия|none}}

Варианты отделки каркаса

Рисунок 24 Узлы отделки каркаса перекрытий

Показатели расхода материалов конструкций каркаса типового этажа.


Конструкции

Удельный расход

Стальной каркас

35-40 кг/кв.м

Железобетонные плиты

53 куб.м

Ц.-п. стяжка

27 куб.м

Огнезащитный материал “Knauf FB”

180 кв.м

В таблице приведены показатели, необходимые для сравнения стального каркаса с альтернативными технологиями, например, с монолитным каркасом. Подобное сравнение справедливо, если затраты на устройство плоской монолитной железобетонной плиты противопоставляются затратам на устройство конструкций перекрытия со стальным каркасом с учётом огнезащиты элементов стального каркаса.

Напишите нам
Подписаться на рассылку
Сообщить об ошибке