В среде городской застройки возникает необходимость в обеспечении объектов общественного назначения (аэропортов, вокзалов, спортивных сооружений, объектов культуры, торговых и деловых центров и пр.), а также жилых кварталов местами для хранения автомобилей. Важнейшее значение играет максимально эффективное использование участка строительства при наименьших капитальных вложениях.
Экономичный городской паркинг – это надземная открытая рамповая многоярусная парковка высотой до 6 этажей прямоугольной формы шириной 35 м и длиной до 57 м. Далее освещены способы сокращения расходов на строительство с использованием современных материалов и технологий, а также методы оптимизации объемно-планировочных решений.
Преимущества строительства паркинга со стальным каркасом
Особенности объемно-планировочных решений
Рамповые гаражи-стоянки разделяют на следующие типы:
- плоская одноярусная стоянка;
- плоская многоярусная стоянка;
- плоская многоярусная стоянка с короткими пандусами;
- наклонная стоянка.
Рис.1 Типы рамповых стоянок
Наиболее эффективная расстановка автомобилей – прямоугольная с общим проездом на два ряда (рис.2). При этом ширина пролета Lпр зависит от размера машино-места и ширины проезда, определяемых классом припаркованных автомобилей (табл.1).
Рис.2 Расстановка автомобилей в двухрядном пролете
|
Класс автомобиля
|
Длина автомобиля в классе, мм
|
Параметры защитной зоны
от торцевой стороны автомобиля, мм
|
Ширина проезда при установке
автомобилей задним ходом без дополнительного маневра, мм
|
Ширина пролета Lпр двухрядной
расстановки автомобилей вдоль проезда, мм
|
|
Малый
|
3 700
|
500
|
5 600
|
14 000
|
|
Средний
|
4 300
|
500
|
6 100
|
15 700
|
|
Большой
|
5 000
|
500
|
6 500
|
17 500
|
Табл.1 Зависимость ширины пролета Lпр от размера машино-места и ширины проезда
При строительстве общественных (не специализированных) автостоянок ширина пролета обычно составляет 16 500–18 000 мм. Алгоритм поиска наиболее экономически целесообразного решения по рампе можно свести к следующему: поставить несколько пролетов рядом или расставить машино-места по площадке с максимальным заполнением площади, как на плоскостной стоянке (назовем это «плоскостным решением»), с необходимыми проездами между рядами и вдоль них; затем, накладывая на эту планировку различные схемы рампы с учетом высотных отметок межэтажных перекрытий, подобрать такой тип рампы, который исключал бы как можно меньше машино-мест.
Все типы рамп можно разделить на две группы: рампы с машино-местами вдоль проезда и рампы без машино-мест. Рампы с машино-местами, или так называемые наклонные перекрытия имеют продольный уклон, не превышающий 6%, и являются наиболее эффективным решением по использованию площади автостоянки, так как совпадают с «плоскостным решением».
Уклон рамп без машино-мест по оси полосы движения в закрытых неотапливаемых и открытого типа стоянках должен быть не более 18%, криволинейных рамп – не более 13%, продольный уклон открытых (не защищенных от атмосферных осадков) рамп – не более 10%. Ширина здания автостоянок открытого типа не должна превышать 40 м (иначе не обеспечивается продуваемость), поэтому для них применяется 2-пролетная (4 ряда автомобилей вдоль проездов) схема расположения машино-мест. Одно из возможных решений при ширине здания 35 м и высоте межэтажных перекрытий 3 м показано на рисунке 1.3. При длине здания 35 м для подъема на этаж протяженности 2-х наклонных перекрытий недостаточно и используются проезды между пролетами. При площади этажа, не превышающем 2 000 м², здание стоянки имеет минимальную IV степень огнестойкости. Для обеспечения этого условия длина здания не должна превышать 57 м (при ширине 35 м).
Рис.3 План типового этажа для НМРА с наклонными перекрытиями
В случае «полуэтажной» или «полурамповой» схемы размещения пролетов ярусы хранения сдвинуты друг относительно друга на половину высоты этажа (1,1—1,5 м), а полурампы служат одновременно для проезда автомобилей между рядами. Такая планировка позволяет сократить длину рамп и повысить их уклон до 18%. Пример планировки приведен на рисунке 1,4 для 5-этажного гаража с высотой межэтажных перекрытий (от пола до пола) 2,8 м.
Рис.4 План первого этажа
Рис.5 План второго - пятого этажа
Рис.6 Пример объемно-планировочного решения «полуэтажной» схемы
Эффективность объемно-планировочного решения гаража-стоянки характеризуется двумя показателями:
1) приведенной площадью машино-места S
пр: S
пр=S
общ/N,
где:N – количество машино-мест;
S
общ – общая площадь автостоянки
2) коэффициентом эффективности K
э использования площади гаража-стоянки: К
э=(N∙s)/S
общ,
где:S – площадь одного машино-места
N·s – общая площадь мест хранения.
Значения этих показателей зависят от рациональности выбранного объемно-планировочного решения, наибольшего приближения его параметров к минимально допустимым (по действующим нормам) габаритам мест хранения, проездов, рамп, помещений инженерного обеспечения и эксплуатационных служб. Уменьшение S
пр и увеличение K
э обеспечивает удешевление будущей себестоимости машино-места.
Для приведенных примеров объемно-планировочных решений стоянок:
S
пр = 6125/210 = 29,17 м
2,
K
э = (13,75·210)/6125 = 0,471.
В табл.2 показана зависимость S
пр, K
э от длины пятиэтажного гаража-стоянки с наклонными перекрытиями или полурамповой схемы:
|
Длина НМРА, м
|
40
|
45
|
50
|
55
|
|
Общее количество машино-мест
|
250
|
290
|
330
|
370
|
|
Общая площадь НМРА, м²
|
7 000
|
7 875
|
8 750
|
9 625
|
|
Площадь этажа, м²
|
1 400
|
1 575
|
1 750
|
1 925
|
|
Sпр, м²
|
28,00
|
27,16
|
26,52
|
26,01
|
Kэ
|
0,491
|
0,506
|
0,519
|
0,529
|
Табл.2 Зависимость Sпр, Kэ от длины пятиэтажного гаража- стоянки с наклонными перекрытиями или полурамповой схемы
Вывод: Наиболее экономически эффективным решением является гараж-стоянка открытого типа с наклонными перекрытиями или с полуэтажной (полурамповой) схемой высотой до 6 этажей с площадью этажа до 2000 м² (в плане шириной 35 м и длиной от 35 до 55 м, с количеством машино-мест до 440). В качестве примера оптимизации проектных решений приведена 4-этажная отдельно стоящая закрытая гараж-стоянка на 440 машино-мест с двумя подземными этажами и с мойкой легковых автомобилей, расположенная в Новой Москве.
Степень огнестойкости здания – III.
Габариты здания в монолитном исполнении – 75х60 м, высота этажа – 2,8 м.
Благодаря применению полурамповой компоновки здания на стальном каркасе удалось разместить необходимое количество машино-мест на надземных этажах и эксплуатируемой кровле, избавившись от подземных этажей.
Габаритные размеры здания на стальном каркасе – 35,4х70,475 м.
Шаг колонн – 5,4х5,7–6,6 м, высота этажа – 3,0 м с полуэтажами.
Наименование
показателя
|
Единица измерения
|
Количество
|
|
Этажность, в том числе:
|
эт.
|
6
|
|
- подземных
|
эт.
|
2
|
|
- надземных
|
эт.
|
4
|
|
Площадь застройки
|
м²
|
2 621
|
|
Общая площадь
|
м²
|
10 400
|
|
Количество машино-мест
|
м/м
|
450
|
Табл.3 Технико-экономические показатели многоярусной парковки из монолитного ж/б
|
Наименование показателя
|
Единица измерения
|
Количество
|
|
Этажность
|
эт.
|
4
|
|
Площадь застройки
|
м²
|
2 690
|
|
Общая площадь
|
м²
|
10 200
|
|
Количество машино-мест, в том числе:
|
м/м
|
440
|
|
на открытых этажах
|
м/м
|
338
|
|
на кровле
|
м/м
|
102
|
Табл.4 Технико-экономические показатели многоярусной парковки на стальном каркасе
Рис.7 Пример оптимизации объемно-планировочных решений
Несущие конструкции
Большое влияние на принимаемые объемно-планировочные решения, а как следствие, и на конструктив будущего здания оказывает положение, размер, форма и рельеф земельного участка, предназначенного для строительства гаража-стоянки, а также расположение и назначение зданий существующей застройки. Для возведения многоярусных автостоянок, как правило, выбирают земельные участки, уже используемые в качестве плоскостных автостоянок, либо участки с некапитальной застройкой. Преимущество стальных конструкций перед монолитными заключается в малой массе конструкций при больших пролетах, что позволяет быстро собирать здание, как конструктор, в любых погодных условиях. Сроки возведения конструкций сокращаются в 2,5 раза, а общий срок строительства в 1,5-2 раза. Возможность полного демонтажа стальных конструкций позволяет перенести сооружение в другое место если фактическая потребность в местах хранения значительно отличается от плановой.
Рис.8 Примеры узлов стыковки стальных конструкций
Применение стальных конструкций для многоярусных гаражей-стоянок позволяет пристраивать и надстраивать здание в последующем.
Использование стальных конструкций в качестве несущего каркаса (колонны, балки, перекрытия, связи) по сравнению с железобетонным вариантом позволяет экономить на устройстве фундаментов до 30% за счет значительно меньшей нагрузки. Сравнение материалоемкости 5-этажного гаража-стоянки в монолитном исполнении и с использованием стальных конструкций приведено в таблице 2.1.
Значительно меньший вес стальных конструкций предполагает их использование при надстройке зданий для организации мест хранения легковых автомобилей.
Элементы несущих конструкций
здания гаража-стоянки
|
Расход строительных материалов на 1 м² общей площади
гаража-стоянки, кг
|
Сталь
|
Монолитный железобетон
|
Колонны и вертикальные связи
|
5,1
|
Бетон
|
62,3
|
Арматура
|
5,3
|
Балки (основные и второстепенные)
|
25,5
|
Бетон
|
82,0
|
Арматура
|
6,6
|
Перекрытие (с покрытием пола)
|
Профнастил Н75
|
9,2
|
-
|
Бетон
|
330,0
|
781,0
|
Арматура с закладными деталями
|
9,7
|
56,4
|
Всего
|
379,5
|
993,6
|
Табл.5 Сравнение материалоемкости 5-этажного гаража-стоянки в монолитном исполнении и с использованием стальных конструкций
Многоярусные гаражи-стоянки, возведенные на стальном каркасе, представлены в центрах мегаполисов по всему миру, что подтверждает перечисленные преимущества таких конструктивных решений. Стальные конструкции позволяют реализовывать парковочное пространство с пролетами 17,5-18 м без промежуточных колонн, как показано на рис.9.
Рис.9 Примеры конструктивного решения паркинга
а) без дополнительных колонн
б) с дополнительными колоннами на каждые два машино-места
С одной стороны, применение больших пролетов без промежуточных колонн приводит к увеличению металлоемкости гаража-стоянки на 20–25%, увеличению высоты этажа и, как следствие, длины рампы, с другой стороны, появляется дополнительное пространство, занимаемое машино-местами, что положительно сказывается на эффективности гаража-стоянки. В табл.6 приведена удельная материалоемкость конструкций гаражей-стоянок открытого типа для двух вариантов каркаса: с колоннами в пролете через каждые два машино-места и при их отсутствии (рис.10).
Конструкции несущего каркаса здания гаража- стоянки
|
Расход строительных материалов на 1 м² общей площади
|
Разность расхода строительных материалов несущего каркаса
|
Без дополнительных колонн в пролете
|
С дополнительными колоннами в пролете через каждые два машино-места
|
Несущие стальные конструкции, кг
|
49,46
|
39,80
|
9,66
|
Количество бетона для перекрытий, м³
|
0,13
|
0,11
|
0,02
|
Арматура перекрытий, кг
|
12,0
|
9,7
|
2,3
|
Табл.6 Удельная материалоемкость конструкций гаражей-стоянок открытого типа для двух вариантов каркаса
|

|
Рис.10 Гараж-стоянка с пролетом 17-18 м (Москва, Митинская ул., вл. 22,
компания «ЕВРОГРУП»)
|
Рис.11 Гараж-стоянка с двумя дополнительными колоннами в пролете (Москва,
Филевский бульвар, 1,компания «К-Проект»)
|
Перекрытия выполняют из монолитного и сборного железобетона. Монолитное перекрытие в зданиях, возводимых из стальных несущих конструкций, обычно выполняют по несъемной опалубке – стальному оцинкованному профилированному настилу. Применение несъемной опалубки значительно ускоряет процесс возведения перекрытий и снижает себестоимость конструкции перекрытия. Профилированный лист используется как традиционных типов (Н75, Н114), так и современных типов, имеющих специальную насечку на стенках гофров, обеспечивающую надежное сцепление и совместную работу профлиста с бетоном перекрытия, что позволяет снижать расход арматуры перекрытия. Применяются также типы профилированного листа с высоким гофром (рис.10). Такие виды профлиста позволяют не предусматривать второстепенные балки.
Стены лестничной клетки и шахты лифта выполняют как из монолитного ж/б, так и из бетонных блоков для достижения предела огнестойкости 45 минут, требуемого для здания гаража-стоянки IV степени огнестойкости. Двери пассажирского лифта должны иметь предел огнестойкости не ниже 30 минут, грузового – 60 минут.
Фасады
Фасады многоярусных гаражей-стоянок для открытой и закрытой частей имеют принципиальные конструктивные различия. Для закрытой части (наружные стены лестничной клетки, отапливаемые служебные помещения и пр.) применяют те же решения, что и для других общественных зданий. В последнее время широкое распространение получили системы вентилируемого фасада, используемые с фиброцементными, керамогранитными, композитными и другими видами панелей.
В наружном ограждении открытого гаража-стоянки должно быть не менее 50% проемов от площади внешней поверхности, иначе гараж-стоянка не будет открытой, то есть не будет иметь сквозного продувания. Также в дневное время не требуется искусственное освещение открытого паркинга. В качестве ограждений могут быть использованы натянутые тросы, парапеты высотой не более 1 м и другие конструкции.
Для открытой части гаражей-стоянок применяются:
- различные металлические решетки
- парапеты высотой до 1 м
- фасады, выполненные с применением окрашенных или оцинкованных труб

|

|
|
Рис.12 Пример металлического ограждения
|
Рис.13 Пример открытого гаража-стоянки с ограждением
в виде парапета в Череповце
|
|
|
Рис.14 Пример ограждения из окрашенных труб.
Концепция гаража-стоянки компании «К-Проект»
|
Рис.15 Пример ограждения из оцинкованных труб
|
- просечно-вытяжная и другие виды сеток
|
|
|
Рис.16 Пример решения фасада с просечно-вытяжной сеткой
|
Рис.17 Пример решения фасада с панелями из сетки
|
|

|
|
Рис.18 Пример решения фасада из металлических жалюзи
|
Рис.19 Пример решения фасада из металлических жалюзи
|
- комбинированные решения фасадов
Рис.20 Пример комбинированного решения фасада. Стоянка на 297 м/м
в Московской обл., Ленинский р-н, пос. Коммунарка, уч-к 39, компания «ЕВРОГРУП»
Инженерные системы
При проектировании экономичных многоярусных гаражей-стоянок инженерные системы предусматривают в минимальном требуемом объеме.
Для открытого гаража-стоянки с манежным хранением автомобилей предусматривают электроосвещение общей зоны хранения, не используемое в светлое время суток, и электроснабжение служебных и технических помещений, в том числе электрическое отопление. Температура воздуха в технических помещениях должна быть не ниже +5 °C. Водоснабжение и хозяйственно-бытовая канализация предусматривается в минимальном объеме: для санузла охраняемой парковки и комнаты хранения уборочного инвентаря.
Приточно-вытяжная вентиляция и противодымная вентиляция открытой стоянки не требуются при условии ее продуваемости: ширина здания не должна превышать 40 м, а наружное ограждение открытой стоянки должно иметь не менее 50% проемов от площади фасада. Открытые гаражи-стоянки оборудуют пожарным водопроводом и пожарной сигнализацией.
Кровля
Кровли автостоянок проектируют как эксплуатируемыми, так и неэксплуатируемыми.
Эксплуатируемые кровли предусматривают под размещение машино-мест, озеленения, зон отдыха и прочего. Для снижения стоимости машино-места экономичной многоярусной парковки рационально предусматривать эксплуатируемую кровлю как дополнительное парковочное пространство. Выбор конструкции эксплуатируемой кровли зависит от ее назначения. Пирог кровли отличается для разных кровельных систем и принимается в соответствии со стандартами организаций или альбомами технических решений производителей кровель.
Рис.21 Эксплуатируемая кровля многоярусного паркинга на 2371 м/м
в Москве на ул. Нагорная, д.3, компания «ЕВРОГРУП»
Рис.22 Концепция многоярусного паркинга с эксплуатируемой кровлей на 2176 м/м
в Москве, аэропорт Внуково, привокзальная площадь, компания «ЕВРОГРУП»
Полы
Полы гаражей-стоянок должны иметь достаточную прочность, устойчивость к истиранию, к воздействию влаги, ударным и химическим воздействиям, а также должны быть достаточно морозостойкими. В противном случае пол автостоянки достаточно быстро потеряет свой первоначальный вид и потребует ремонта. Тип покрытия пола выбирают в зависимости от интенсивности механических и жидкостных воздействий.
Конструкции полов можно разделить на следующие типы:
- полы, устраиваемые по существующему бетонному основанию (перекрытию): В качестве покрытий по бетонному основанию применяют цементно- бетонные стяжки, асфальтобетон, бетонные плитки и плиты и прочее. Такой тип покрытий относят к традиционному, они могут быть заводского изготовления или устраиваются на строительной площадке;
- бетонное перекрытие с упрочненным верхним слоем: Бетонное перекрытие с упрочненным верхним слоем является одним из наиболее экономичных вариантов. Упрочнение достигается механизированным втиранием специальной сухой смеси в свежеуложенный бетон перекрытия;
- наливной пол: Наливной пол, как правило, представляет собой полимерное покрытие, помимо нового строительства может применяется при ремонте и реконструкции для восстановления потребительских качеств пола. Преимуществом такого решения является простота технологии производства работ и низкие трудозатраты.
Лифты
В соответствии с действующими нормами каждый пожарный отсек здания гаража-стоянки должен оборудоваться лифтом с режимом работы «перевозка пожарных подразделений». Для транспортировки автомобилей может быть предусмотрен грузовой лифт. Количество грузовых лифтов принимается из расчета: один лифт на 100 машино-мест, расположенных на этажах выше первого. Лифты для транспортировки автомобилей располагают как снаружи (пристроенные), так и внутри здания. Грузовые лифты применяют, как правило, в механизированных и автоматизированных парковках.
Рис.23 Многоярусный паркинг на 308 м/м, Московская обл., г. Мытищи, ул. Колпакова, вблизи д.39
Рис.24 Многоярусный паркинг на 1350 м/м, г. Москва, Электролитный пр., вл. 16
Ворота
В многоярусных гаражах-стоянках применяют в основном подъемно-секционный тип ворот. Подъемно-поворотные применяются в основном для гаражей-боксов или индивидуальных гаражей, а откатные ворота – для плоскостных стоянок. Сообщение между зоной хранения и помещением мойки осуществляется только через проемы, оснащенные противопожарными воротами. Противопожарные ворота необходимо предусматривать в противопожарных стенах, если здание автостоянки разделено на пожарные отсеки.
Автомойка
Мойку автомобилей в гараже-стоянке следует предусматривать при отсутствии другой мойки в радиусе 400 м. Помещения мойки представляют для застройщика продаваемую площадь. Мойка размещается на первом этаже гаража-стоянки. Отопление помещения мойки проектируется воздушное, совмещенное с приточной вентиляцией, температура внутреннего воздуха должна составлять не ниже +18 °С.
Проектом необходимо предусматривать технологическое оборудование мойки, в том числе оборотную систему водоснабжения. Для сокращения расходов застройщика допускается не комплектовать мойку технологическим оборудованием, предусмотренным проектом, предоставив комплектацию мойки организации, которая будет ее эксплуатировать.
Рис.25 Многоярусный паркинг на 1350 м/м, г. Москва, Электролитный пр., вл. 16
Огнезащита
Зависимость требуемой степени огнестойкости здания открытой парковки от этажности и площади этажа приведена в табл.7:
Степень огнестойкости
здания (сооружения)
|
Класс конструктивной пожарной
опасности здания (сооружения)
|
Допустимое количество
этажей
|
Площадь этажа в пределах пожарного отсека, м²
|
одноэтажного здания
|
многоэтажного здания
|
|
I, II
|
С0
|
9
|
10 400
|
5 200
|
С1
|
2
|
3 500
|
2 000
|
III
|
С0
|
6
|
7 800
|
3 600
|
С1
|
2
|
2 000
|
1 200
|
IV
|
С0
|
6
|
7 300
|
2 000
|
С1
|
2
|
2 600
|
800
|
Табл.7 Зависимость степени огнестойкости открытой парковки от этажности и площади этажа
Устройство неизолированных рамп (полурамп) допускается в наземных автостоянках:
- при реконструкции существующих зданий автостоянок I и II степени огнестойкости; при этом должны быть предусмотрены пожарный отсек (отсеки), определяемые как сумма площадей этажей, соединенных неизолированными рампами. Площадь такого противопожарного отсека не должна превышать 10 400 м2;
- в зданиях классов конструктивной пожарной опасности С0 и С1 этажей включительно I и II степени огнестойкости при суммарной площади этажей не более 10 400 м2;
- в автостоянках открытого типа.
Для отмеченного в таблице варианта допускается использовать несущие металлические конструкции без мероприятий по повышению их огнестойкости. Для большего количества машино-мест необходимо повысить огнестойкость металлических конструкций или разделить здание одним из следующих способов:
- на пожарные отсеки противопожарными стенами 1-го типа;
-
на здания противопожарным разрывом (проездом) шириной не менее 8 м;
-
изолированными рампами.
Представленные примеры показывают, что зона проезда автомобилей вдоль и/или поперек мест хранения автомобилей одновременно должна являться рампой, иначе объемно-планировочные решения будут менее эффективны.
Использование стальных конструкций без мероприятий по повышению их огнестойкости в многоярусных гаражах-стоянках закрытого типа невозможно. В этом случае возникает необходимость в устройстве внутренних систем приточно-вытяжной вентиляции, дымоудаления, автоматического пожаротушения, что вносит существенный вклад в стоимость возведения многоярусной парковки.
Как показано в табл.7, огнезащита стальных конструкций не применяется только в гаражах-стоянках IV степени огнестойкости. Для гаража-стоянки III степени огнестойкости (до 830 машино-мест) предел огнестойкости основных несущих конструкций должен составлять R45 (45 минут). Для этой степени огнестойкости допускается использовать относительно недорогие тонкослойные огнезащитные покрытия (краски, лаки, эмали), вспучивающиеся при температурном воздействии в 20–30 раз.Стоимость огнезащиты гаража-стоянки III степени огнестойкости составит около 900 руб/м
2.
Для гаража-стоянки II степени огнестойкости (до 1 770 машино-мест) применение тонкослойных покрытий ограничено нормативными требованиями, поэтому применяются огнезащитные облицовки, штукатурки и другие виды конструктивной огнезащиты. Стоимость огнезащиты гаража-стоянки II степени огнестойкости составит около 1 200 руб/м
2.
Таким образом, дополнительные расходы на повышение огнестойкости конструкций многоярусных парковок для III степени не превысят 19 000 руб/машино-место, или не более 6,5% от стоимости строительства здания, для второй степени – не более 10% соответственно.
Концепции АРСС
Линейная двухсторонняя многоуровневая парковка с платформами для автомобилей
Линейный многоуровневый паркинг, разработанный конструкторским отделом «Северсталь Стальные Решения», позволяет разместить максимальное количество автотранспорта на небольшой территории. Количество машино-мест на одном этаже – 66. Данное типовое решение для паркинга может быть реализовано различной этажности – от двух до пяти этажей.
Рис.26 Линейная двухсторонняя многоуровневая парковка с платформами для автомобилей. Компания «Северсталь Стальные Решения»
Наименование
|
Единица измерения
|
131 машино-мест
|
228 машино-мест
|
300 машино-мест
|
Общая площадь здания
|
м²
|
3 760,68
|
5 640,9
|
7 521,36
|
9 401,7
|
Площадь застройки
|
м²
|
2 117,91
|
2 117,91
|
2 117,91
|
2 117,91
|
Строительный объем
|
м²
|
11 860,24
|
17 760,36
|
23 720.6
|
30 383,34
|
Площадь 1-го этажа
|
м²
|
1 880,34
|
1 880,34
|
1 880,34
|
1 880,34
|
Площадь типового этажа
|
м²
|
1 880,34
|
1 880,34
|
1 880,34
|
1 880,34
|
Металлоемкость
|
кг/м²
|
46
|
37
|
37
|
46
|
Этажность
|
эт.
|
2
|
3
|
4
|
5
|
Табл.8 Технико-экономические показатели
Типовой паркинг на 300 машино-мест
Типовое решение разработано для открытого и закрытого типов гаража-стоянки как с мойкой, так и без нее. Фотографии плана первого этажа и типового этажа (относятся к закрытому и открытому паркингу).

|

|
|
Рис.27 План 1-го этажа с мойкой
|
Рис.28 План типового этажа
|

|
|
Рис.29 Макет многоярусного паркинга компании «Северсталь Стальные Решения»
|
Наименование
|
Единицы измерения
|
Закрытый паркинг на 300 машино-мест
|
Открытый паркинг
|
без мойки
|
с мойкой
|
Общая площадь здания
|
м²
|
9 777,82
|
10 194,41
|
9 777,82
|
Площадь застройки
|
м²
|
1 862,15
|
1 872,75
|
1 862,15
|
Строительный объем
|
м²
|
29 282,82
|
30 990,38
|
29 282,82
|
Площадь 1-го этажа
|
м²
|
1 647
|
1 691,70
|
1 647
|
Площадь типового этажа
|
м²
|
1 610,2
|
1 610,20
|
1 610,20
|
Площадь мойки
|
м²
|
|
789,40
|
|
Металлоемкость
|
кг/м²
|
53
|
51 760
|
51,30
|
Этажность
|
эт.
|
5
|
5,50
|
5
|
Табл.9 Технико-экономические показатели
Линейный двухрядный паркинг с радиальной рампой
Количество мест на одном этаже – 66 машино-мест. Данный паркинг может быть реализован в 2-, 3-, 4-, 5-этажном исполнении.
Рис.30 Линейный двухрядный паркинг. Компания «Северсталь Стальные Решения»
Наименование
|
Единицы измерения
|
123 машино-мест
|
189 машино-мест
|
255 машино-мест
|
300 машино-мест
|
Общая площадь здания
|
м²
|
23 546,5
|
35 319,72
|
47 092,96
|
58 866,2
|
Площадь застройки
|
м²
|
12 790,6
|
12 790,6
|
12 790,6
|
12 790,6
|
Строительный объем
|
м²
|
65 930,14
|
98 895,2
|
131 860,3
|
164 825,36
|
|
Площадь 1-го этажа
|
м²
|
11 773,24
|
11 773,24
|
11 773,24
|
11 773,24
|
|
Площадь типового этажа
|
м²
|
11 773,24
|
11 773,24
|
11 773,24
|
11 773,24
|
|
Металлоемкость
|
кг/м²
|
62
|
37
|
37
|
46
|
|
Этажность
|
эт.
|
2
|
3
|
4
|
5
|
Табл.10 Технико-экономические показатели
Паркинг открытого типа на 495 машино-мест
Рис.31 Паркинг открытого типа. Компания «ЕВРОГРУП»
Степень огнестойкости – III.
Проектом предусматривается строительство отдельно стоящей 5-этажной надземной гараж-стоянки с эксплуатируемой кровлей на 495 машино-мест. Габаритные размеры здания – 114,90х21,9 м. Шаг колонн 5,2х17,3 м, высота этажа – 3,1 м. Подвальный этаж не предусмотрен. Движение автомобилей по вертикали организовано по встроенным неизолированным рампам, уклон рампы – 14%.
Фасады: металлическое ограждение. Перекрытие выполнено по технологии компании ThyssenKrupp. Лестницы – монолитные, железобетонные. Вместимость этажа: 84 м/м. Стоимость машино-места – 400 тыс. руб.
|
Технико-экономические показатели
|
Единица измерения
|
Количество
|
|
Этажность
|
эт.
|
5
|
|
Площадь застройки
|
м²
|
2 400
|
|
Общая площадь
|
м²
|
13 800
|
|
Количество машино-мест
|
м/м
|
495
|
|
Шаг колонн
|
м
|
5,2х17,3
|
Табл.11 Технико-экономические показатели
Рис.32 Схема паркинга открытого типа. Компания «ЕВРОГРУП»
Паркинг
открытого типа на 297 машино-мест
Рис.33
Паркинг открытого типа. Компания «ЕВРОГРУП»
Степень огнестойкости
– IV.
Проектом предусматривается строительство отдельно стоящей
5-этажной надземной гараж-стоянки с эксплуатируемой кровлей на 297 машино-мест.
Габаритные размеры здания –
100,50х22,05 м. Шаг колонн – 5,2х17,3 м, высота этажа – 3,1 м. Подвальный этаж
не предусмотрен. Движение автомобилей по вертикали организовано по встроенным
неизолированным рампам, уклон рампы – 14%.
Фасады комбинированные:
металлическое ограждение и парапет из профилированного листа. Перекрытие выполнено по технологии
компании ThyssenKrupp. Лестницы –
монолитные, железобетонные. Вместимость
этажа: 67 м/м. Стоимость машино-места –
430 тыс. руб.
|
Технико-экономические
показатели
|
Единица измерения
|
Количество |
|
Этажность
|
эт.
|
5
|
|
Площадь застройки
|
м²
|
1 870
|
|
Общая площадь
|
м²
|
11 200
|
|
Количество машино-мест
|
м/м
|
297
|
|
Шаг колонн
|
м
|
5,2х17,3 |
Табл.12 Технико-экономические показатели
Рис.34 Схема паркинга открытого типа. Компания «ЕВРОГРУП»
Наземный гараж-стоянка из двух
корпусов
Рис.35 Наземный гараж-стоянка. Компания «К-Проект»
Степень огнестойкости
– III.
Фасадное решение
корпусов гаражного комплекса основано на сочетании двух различных материалов,
одним из которых являются фиброцементные панели, которыми облицованы лестницы,
лифтовые шахты и торцевые фасады корпусов, другим – окрашенные в белый цвет
металлические трубы прямоугольного сечения. Цоколь фасада корпусов облицован
фиброцементными панелями темно- серого цвета.
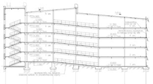
Корпус 1 – открытый, неотапливаемый гараж-стоянка на 522
легковых автомобиля представляет собой 6-этажное здание со смещенными
полуэтажами шириной 17,7 м и переменной длиной 67,5-73,9 м, с одной внутренней
неизолированной двухпутной рампой с уклоном 13% и двумя однопутными внутренними
неизолированными рампами с уклоном 13–15%, на которых предусмотрены пешеходные
трапы, поднятые над уровнем проезжей части.
Высота 1–5 этажей
(от пола до пола полуэтажей) – 3,0-3,2 м, высота
6-го этажа – переменная из-за уклона кровли (до ~5 м) и последнего полуэтажа. Габаритные размеры здания –
(68,0-74,1)х36,2 м. Сетка колонн –
(5,4-6,6)х(2,7-5,4) м.
Корпус 2. Гараж-стоянка включает в себя комплекс различных по
функциональному назначению помещений с поэтажно-блочным зонированием на 6
этажах, с неэксплуатируемой кровлей. На 1-м этаже расположены помещения мойки
легковых автомобилей на 6 постов и участка шиномонтажных работ, подсобные
помещения, помещения обслуживающего персонала, административные и клиентские
помещения, технические помещения, магазин запчастей, помещения 4 боксов –
отапливаемые.
1–6 этажи –
гараж-стоянка открытого типа со смещенными полуэтажами шириной 17,7 м и
переменной длиной 78,4-104 м, с двумя парами однопутных неизолированных рамп с
уклоном 13-16%. Габаритные размеры
здания – (78,9–104)х36,2 м. Сетка
колонн – (5,4–6,6)х(2,9-5,4) м.
Кровля скатная из
окрашенного стального профнастила Н75. Наружное
ограждение открытого гаража-стоянки выполнено с использованием металлических
труб прямоугольного сечения и сетчатого ограждения. Лестницы – монолитные, железобетонные. Стоимость машино-места – 400 тыс.руб.
|
Наименование показателя
|
Единица измерения
|
Номер корпуса
|
Всего
|
|
1
|
2
|
|
Верхняя отметка объекта
|
эт.
|
21,150
|
21,950
|
-
|
|
Этажность
|
этажи
|
6
|
6
|
-
|
|
Площадь участка
|
га
|
1,3
|
|
Площадь застройки
|
м²
|
2 630
|
3 392
|
6 022
|
|
Общая площадь
|
м²
|
15 015,6
|
18 958,4
|
33 974
|
|
Сетка колонн
|
м
|
(5,4-6,6) х (2,7-5,4)
|
(5,4-6,6) х (2,9-5,4)
|
-
|
Количество машино-мест в
открытой части гаража-стоянки
|
м/м
|
552
|
652
|
1 174
|
|
Количество гаражных
боксов
|
бокс
|
-
|
4
|
4
|
Табл.13 Технико-экономические показатели
 |  |
| Рис.36 Корпус 1 |
 |  |
| Рис.37 План типового этажа и разрез. Корпус 2 |
|  |
| Рис.38 Корпус 2 |
Гараж-стоянка открытого типа на
300 машино-мест с автомойкой
Рис.39 Планы и разрез гаража-стоянки открытого
типа на 300 машино-мест
с мойкой легковых автомобилей в г. Ростове-на-Дону. Компания
«К-Проект»
Степень огнестойкости
– IV.
Проектом предусматривается строительство отдельно стоящего 5-этажного
надземного гаража-стоянки на 300 машино-мест с мойкой легковых автомобилей. Габаритные размеры здания – 60,8х34,8 м, шаг колонн
– 2,8-5,2х5,3-6,8 м, высота этажа – 2,8 м с полуэтажами. Подвальный этаж не
предусмотрен. На 1-м этаже предусмотрена мойка.
Движение автомобилей по вертикали организовано по
встроенной неизолированной двухпутной рампе с транзитным движением автомобилей
через полуэтажи автостоянки. Уклон рампы – 13%. На рампе предусмотрены тротуары
шириной 0,9 м для прохода на полуэтаж.
Общая устойчивость зданий
обеспечивается жесткими узлами рам в поперечном направлении, вертикальными
связями в продольном направлении, жесткими дисками перекрытий и пандусов и
горизонтальными связями в уровне прогонов покрытия.
Фасады: стальные
элементы с окраской. Наружные стены
отапливаемой части здания выполнены из сэндвич- панелей. Лестницы – монолитные, железобетонные. Стоимость машино-места – 320 тыс. руб.
|
Технико-экономические
показатели
|
Единица измерения
|
Количество
|
|
Этажность
|
эт.
|
5
|
|
Площадь застройки
|
м²
|
2 042
|
|
Общая площадь
|
м²
|
9 313
|
|
Количество машино-мест
|
м/м
|
300
|
|
Шаг колонн
|
м
|
2,8-5,2х5,3-6,8
|
Табл.14 Технико-экономические показатели
Гараж-стоянка
открытого типа на 28 машино-мест
Рис.40 Гараж-стоянка открытого типа на 28
машино-мест в г. Саратове. Компания «К-Проект»
Степень огнестойкости
– IV.
Одноэтажная надземная автостоянка открытого типа Г-образной
формы в плане с габаритными размерами между крайними осями 20,7х41,6 м.
Количество этажей –1, высота этажа – 2,8 м
|
Технико-экономические показатели
|
Единица измерения
|
Количество |
|
Этажность
|
эт.
|
1
|
|
Общая площадь
|
м²
|
800
|
|
Количество машино-мест
|
м/м
|
300
|
Табл.15 Технико-экономические показатели
Гараж-стоянка открытого типа на
299 машино-мест
Рис.41 Планы и разрез гаража-стоянки открытого
типа на 299 машино-мест
в г. Тюмени. Компания «К-Проект»
Степень огнестойкости
– III.
Проектом предусмотрено строительство отдельно стоящего
5-этажного надземного гаража-стоянки на 299 машино-мест. Габаритные размеры здания – 52,4х35,2 м. Шаг колонн –
2,8-5,3х5,7-6,8 м, высота этажа – 2,8 м с полуэтажами. Подвальный этаж не
предусмотрен.
Движение автомобилей
по вертикали организовано по встроенной неизолированной двухпутной рампе с транзитным
движением автомобилей через полуэтажи автостоянки. Уклон рампы – 12,5%. На
рампе предусмотрены тротуары шириной 0,9 м для прохода на полуэтаж.
Общая устойчивость зданий
обеспечивается жесткими узлами рам в поперечном направлении, вертикальными
связями в продольном направлении, жесткими дисками перекрытий и пандусов и
горизонтальными связями в уровне прогонов покрытия.
Фасады: стальные
элементы с окраской. Лестницы –
монолитные, железобетонные. Стоимость
машино-места – 300 тыс. руб.
|
Технико-экономические
показатели
|
Единица измерения
|
Количество
|
|
Этажность
|
эт.
|
5
|
|
Площадь застройки
|
м²
|
1 890
|
|
Общая площадь
|
м²
|
8 765
|
|
Количество машино-мест
|
м/м
|
299
|
|
Шаг колонн
|
м
|
2,8-5,2х5,3-6,8
|
Табл.16 Технико-экономические показатели
Строящиеся и реализованные проекты
Публикации